バージュアル新御徒町

10.9万円 管理/共益費 10,000円

東京都台東区三筋2丁目2-4

都営大江戸線「新御徒町」駅徒歩5分

都営浅草線「蔵前」駅徒歩7分

銀座線「田原町」駅徒歩9分

価格
10.9万円 管理/共益費 10,000円
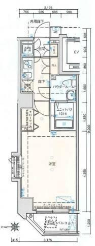
間取り/面積
1K/28.41㎡
所在地
東京都台東区三筋2丁目2-4
築年
2008年2月(築17年)
駐車
-
交通

都営大江戸線新御徒町」駅 徒歩5分

都営浅草線蔵前」駅 徒歩7分

銀座線田原町」駅 徒歩9分

バージュアル新御徒町の基本情報

物件名
バージュアル新御徒町
価格
10.9万円
管理/共益費
10,000円
築年月
2008年2月(築17年)
総戸数
-
所在地
東京都台東区三筋2丁目2-4
交通

都営大江戸線新御徒町」駅 徒歩5分

都営浅草線蔵前」駅 徒歩7分

銀座線田原町」駅 徒歩9分

バージュアル新御徒町の詳細情報

設備条件
  • 閑静な住宅地
  • エレベーター
  • 駐輪場
  • 敷地内ごみ置き場
  • 耐震構造
  • 外観タイル張り
  • CATV
  • 光ファイバー
  • オートロック
  • 宅配ボックス
  • 防犯カメラ
  • 24時間ゴミ出し可
設備(その他)
    -
駐車場/月額
-/-
用途地域
-
戸数
- / -
取引態様
仲介
備考
いつでも快適空間を味わえる通風良好な気持ちよいマンション。こちらは初期費用をカードでお支払いいただける物件です。駅まで5分と、駅近でアクセスも良好な物件です。共用部には敷地内ごみ置き場・エレベータなどが揃っており、とても充実しています。多くの方からご好評頂いているバージュアル新御徒町のご紹介です。台東区エリアの賃貸情報は株式会社部屋市場にお問い合わせください。ご連絡はお電話03-5818-8387、Eメールueno@heya-ichiba.jpまで。

バージュアル新御徒町のコメント(おすすめポイント)

こちらの物件はマンションです。こちらの物件では初期費用をカードでお支払いいただけます。3駅以上利用可能な物件なのでアクセスの幅が広がります。共用部にはエレベータ・敷地内ごみ置き場など様々な設備やサービスが揃っているので便利です。当社イチオシの物件の「バージュアル新御徒町」。ぜひ一度ご覧ください。台東区地域での不動産のことなら、当社へお任せください。お問い合わせはメールからも承っております。 メールアドレス:ueno@heya-ichiba.jp。

バージュアル新御徒町で募集中の物件

  1. 802

    8.59坪 (28.41㎡)

    10.9万円(12689.17円/坪)

周辺施設

  • スーパーヤマザキ 三筋店の画像

    スーパー

    スーパーヤマザキ 三筋店

    55m(1分)

  • ファミリーマート 台東三筋店の画像

    コンビニエンスストア

    ファミリーマート 台東三筋店

    98m(2分)

  • 台東三筋郵便局の画像

    郵便局

    台東三筋郵便局

    223m(3分)

  • ライフ 新御徒町店の画像

    スーパー

    ライフ 新御徒町店

    348m(5分)

  • 蔵前四丁目カフェの画像

    喫茶店・カフェ

    蔵前四丁目カフェ

    371m(5分)

  • なんでも酒やカクヤスの画像

    酒屋

    なんでも酒やカクヤス

    466m(6分)

  • ドラッグセイムス蔵前3丁目店の画像

    ドラッグストア

    ドラッグセイムス蔵前3丁目店

    512m(7分)

  • JOYFIT(ジョイフィット)24 浅草橋の画像

    ジム

    JOYFIT(ジョイフィット)24 浅草橋

    531m(7分)

  • マクドナルド 蔵前駅前店の画像

    ファーストフード

    マクドナルド 蔵前駅前店

    571m(8分)

  • 佐竹商店街の画像

    その他

    佐竹商店街

    593m(8分)

  • 警視庁蔵前警察署の画像

    警察

    警視庁蔵前警察署

    655m(9分)

  • すき家 新御徒町店の画像

    ファーストフード

    すき家 新御徒町店

    682m(9分)

  • ジョナサン 浅草稲荷町店の画像

    ファミリーレストラン

    ジョナサン 浅草稲荷町店

    745m(10分)

  • 日の出湯の画像

    温泉

    日の出湯

    860m(11分)

  • 株式会社多慶屋の画像

    ディスカウントショップ

    株式会社多慶屋

    1162m(15分)

  • ガスト浅草雷門店の画像

    ファミリーレストラン

    ガスト浅草雷門店

    1295m(17分)

  • 同愛記念病院の画像

    総合病院

    同愛記念病院

    1336m(17分)

近隣の物件

  1. 台東区千束4丁目

    1LDK (40.89㎡)

    15.5万円

  2. 台東区北上野2丁目

    1K (25.50㎡)

    11.4万円

  3. 台東区清川2丁目

    1K (22.00㎡)

    8.6万円

  4. 台東区千束3丁目

    2LDK (46.68㎡)

    17.9万円

バージュアル新御徒町

お気軽にお問い合わせください

無料お問い合わせ

株式会社部屋市場 上野本店

03-5818-8387

10:00~21:00(水曜日・木曜日は19:00まで)

(休:年中無休(年末年始を除く))